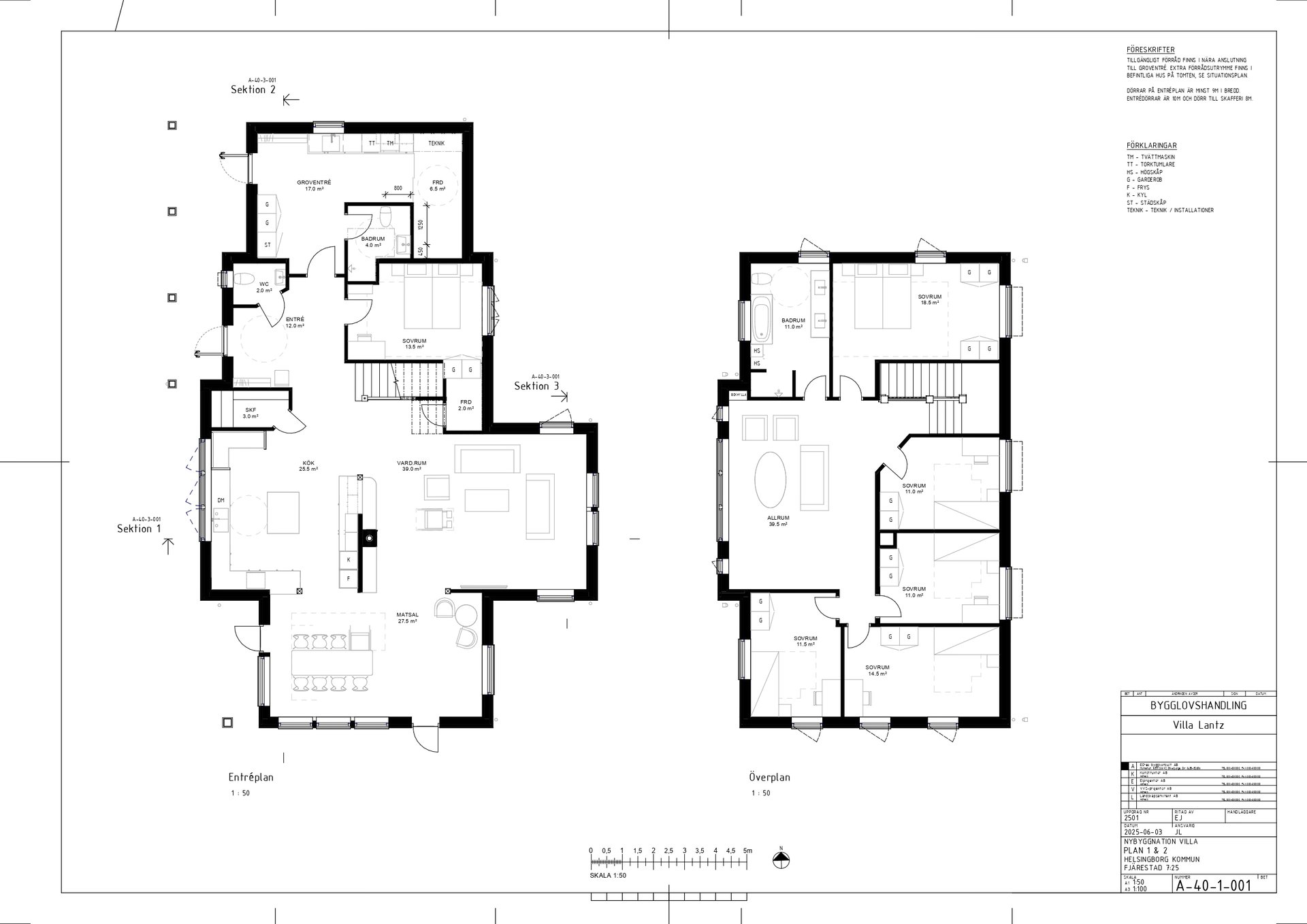
Villa Lantz
Pågående villaprojekt i Helsingborg med traditionsenligt uttryck och en planlösning anpassad efter familjens behov. Uppdraget omfattar arbetet från idé och bygglov till stöd i framtagning av bygghandlingar.
Fakta: Helsingborg · 2025–pågående · Villa · ca 280 kvm · 2 plan
Omfattning: Idé och bygglov, med stöd inför bygghandlingar



© 2026 STARAB Studio Arkitektur. Alla rättigheter förbehållna.


Navigering
Kontakt
+46 704464987
Adress
Kungsgatan 9D
553 31 Jönköping
Sverige
Organisationsnummer: 559574-0951