Utblicken – kv. Kavalleriet
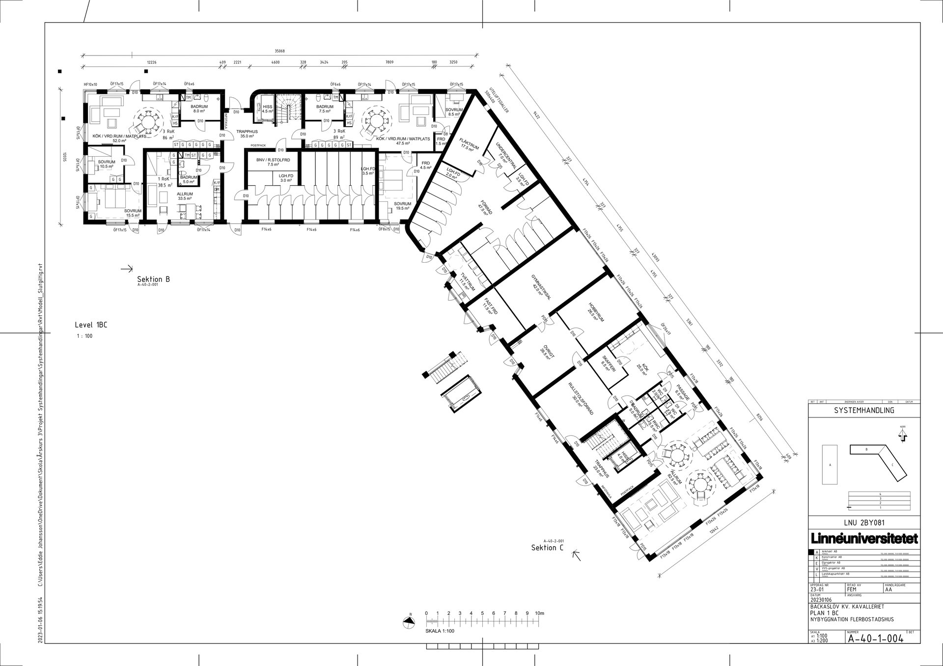
Konceptförslag från 2022 för en stadsnära bostadsmiljö som förenar stad och natur. Två lamellhus i fyra våningar placeras så att de bildar en halvöppen kvartersstruktur med en grön, öppen innergård. Förslaget rymmer hyreslägenheter (1–3 RoK) samt ett trygghetsboende med gemensamma ytor och takterrass.
Fakta: Växjö · Bäckaslöv · Kv. Kavalleriet (Tomt A) · 2022 · Koncept/gestaltning
Innehåll: 2 lamellhus, 4 vån · innergård · trygghetsboende · parkering i bottenplan






© 2026 STARAB Studio Arkitektur. Alla rättigheter förbehållna.


Navigering
Kontakt
info@starab.se
+46 704464987
Adress
Kungsgatan 9D
553 31 Jönköping
Sverige
Organisationsnummer: 559574-0951