Tallbris
Markaryd
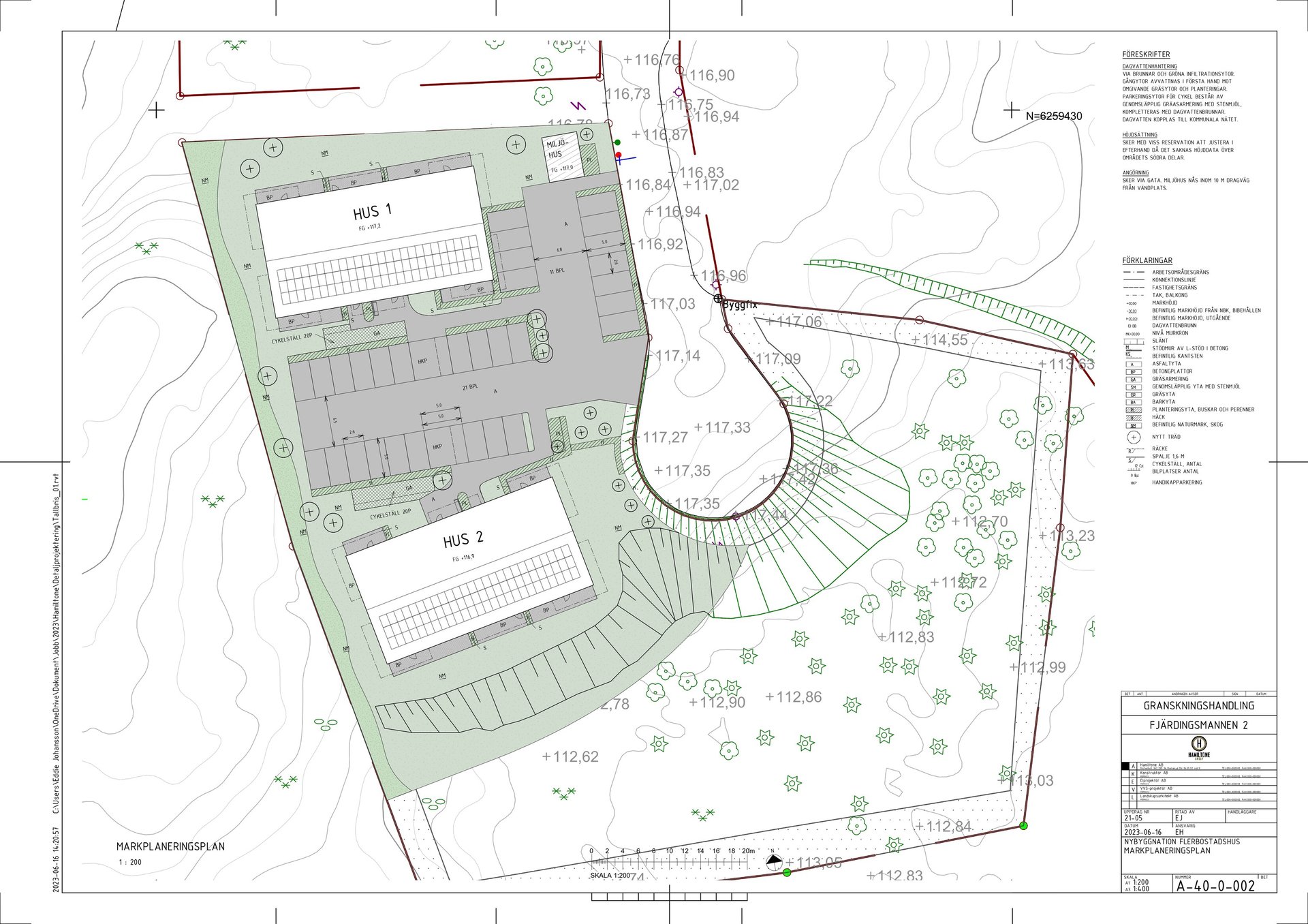
Två flerbostadshus om 16 lägenheter vardera, med balkonger som förlänger bostaden mot trädtopparna.
Fakta: Markaryd · 2023 · Bygglov/detaljprojektering · Hamiltone · Arkitekt · 2×16 lgh
Leverans: Bygglovshandlingar (detaljerade ritningar)




© 2026 STARAB Studio Arkitektur. Alla rättigheter förbehållna.


Navigering
Kontakt
info@starab.se
+46 704464987
Adress
Kungsgatan 9D
553 31 Jönköping
Sverige
Organisationsnummer: 559574-0951