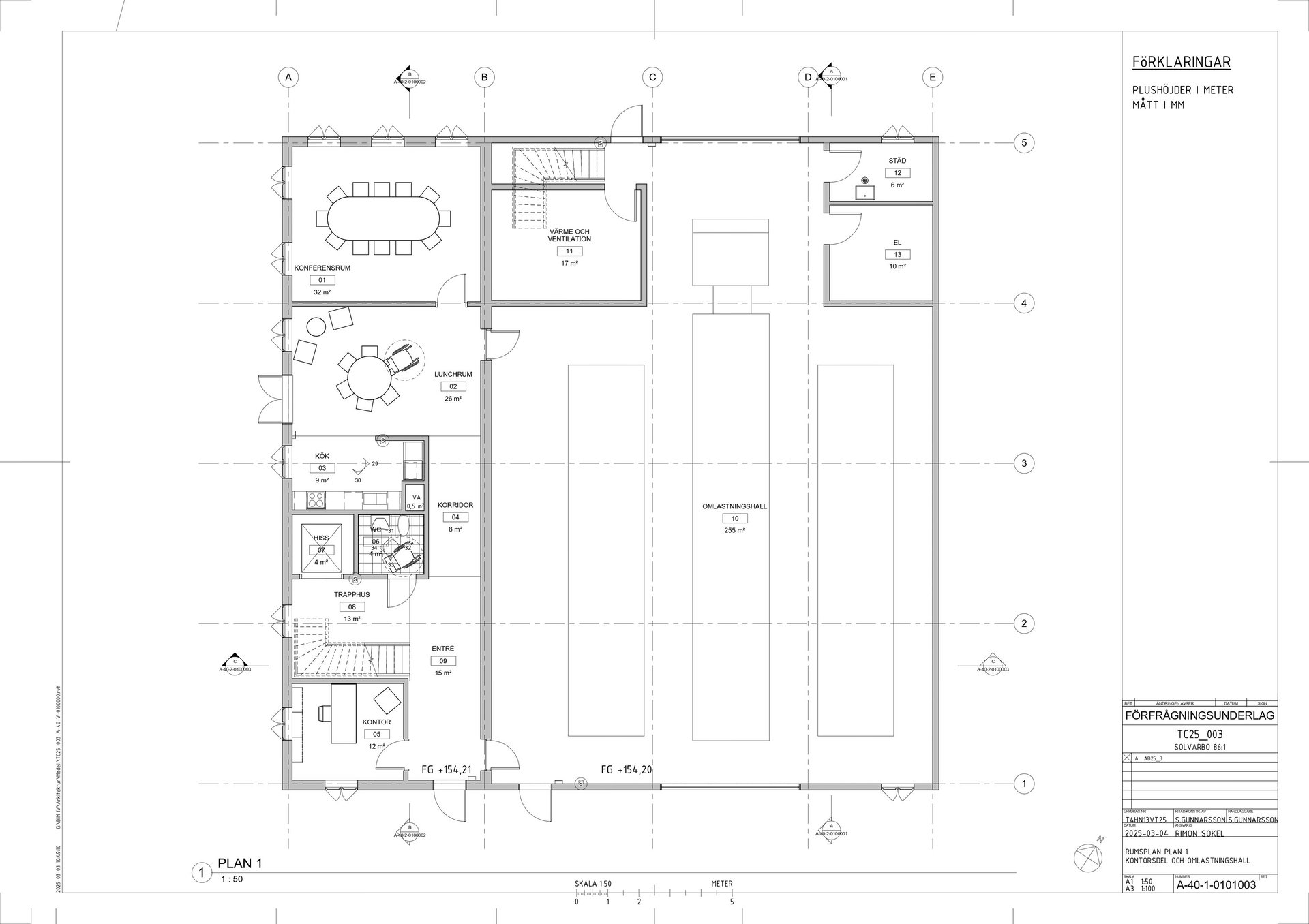
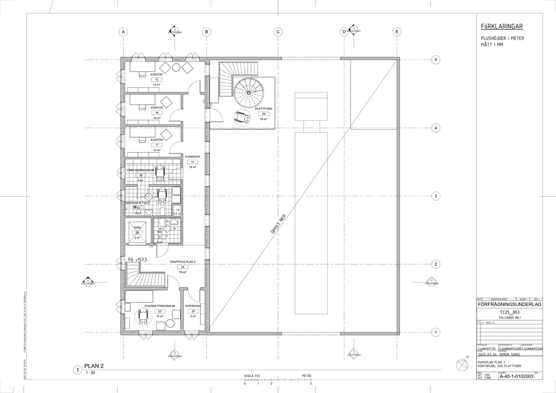
Logistikhallen
Projektet omfattar koordinering och BIM-samordning mellan samtliga discipliner från start till bygghandlingar. Arbetet genomförs i en gemensam BIM-miljö för att minska fel inför byggstart och skapa ett bättre underlag för produktion och förvaltning.
Fakta: 2025 · BIM-samordning/koordinering · Discipliner: A, K, Vent, VS, EL/ljusdesign
Omfattning: Från start till förfrågningsunderlag






© 2026 STARAB Studio Arkitektur. Alla rättigheter förbehållna.


Navigering
Kontakt
info@starab.se
+46 704464987
Adress
Kungsgatan 9D
553 31 Jönköping
Sverige
Organisationsnummer: 559574-0951