Everts
Everts - flerbostadshus
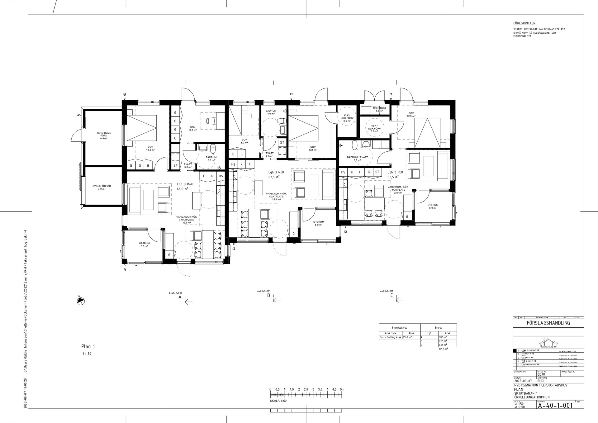
Länga med tre lägenheter: två 2:or och en 3:a. Uppdraget omfattade arbetet från idé till färdiga bygglovshandlingar.
Fakta: Örkelljunga · 2022 · Bygglov · Lycksta äng AB · Arkitekt · 3 lgh
Leverans: Bygglovshandlingar





© 2026 STARAB Studio Arkitektur. Alla rättigheter förbehållna.


Navigering
Kontakt
info@starab.se
+46 704464987
Adress
Kungsgatan 9D
553 31 Jönköping
Sverige
Organisationsnummer: 559574-0951